
CENTRO PASTORALE
RISTRUTTURAZIONE
Carvico, BG
dimensione: 400 mq
importo: 0,5 milioni di euro
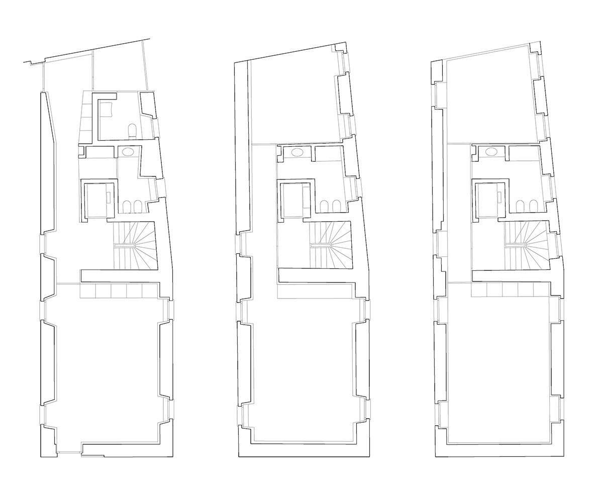
funzione: canonica, archivio e aule
progetto: 2009
costruzione: 2010
cliente: Parrocchia di San Martino Vescovo
La vecchia casa parrocchiale da anni in stato di abbandono è stata oggetto di un programma di riuso e riconfigurazione interna ed esterna nel rispetto della tipologia storica e dei materiali. Si tratta di un progetto nel quale si è cercato di valorizzare l’impianto a corpo semplice allungato con scala al centro, senza alterare il sistema delle murature portanti. Al minimale carattere che connota il restauro dei fronti esterni si contrappongono gli spazi e gli elementi colorati degli interni sui tre livelli e il disegno sinuoso del verde introdotto nel cortile.









