 
     Casa MCR
RISTRUTTURAZIONE
RISTRUTTURAZIONE
Bergamo
dimensione: 100 mq
importo: -
funzione: residenza
progetto: 2014
importo: -
funzione: residenza
progetto: 2014
costruzione: 2015-2016
cliente: privato
cliente: privato
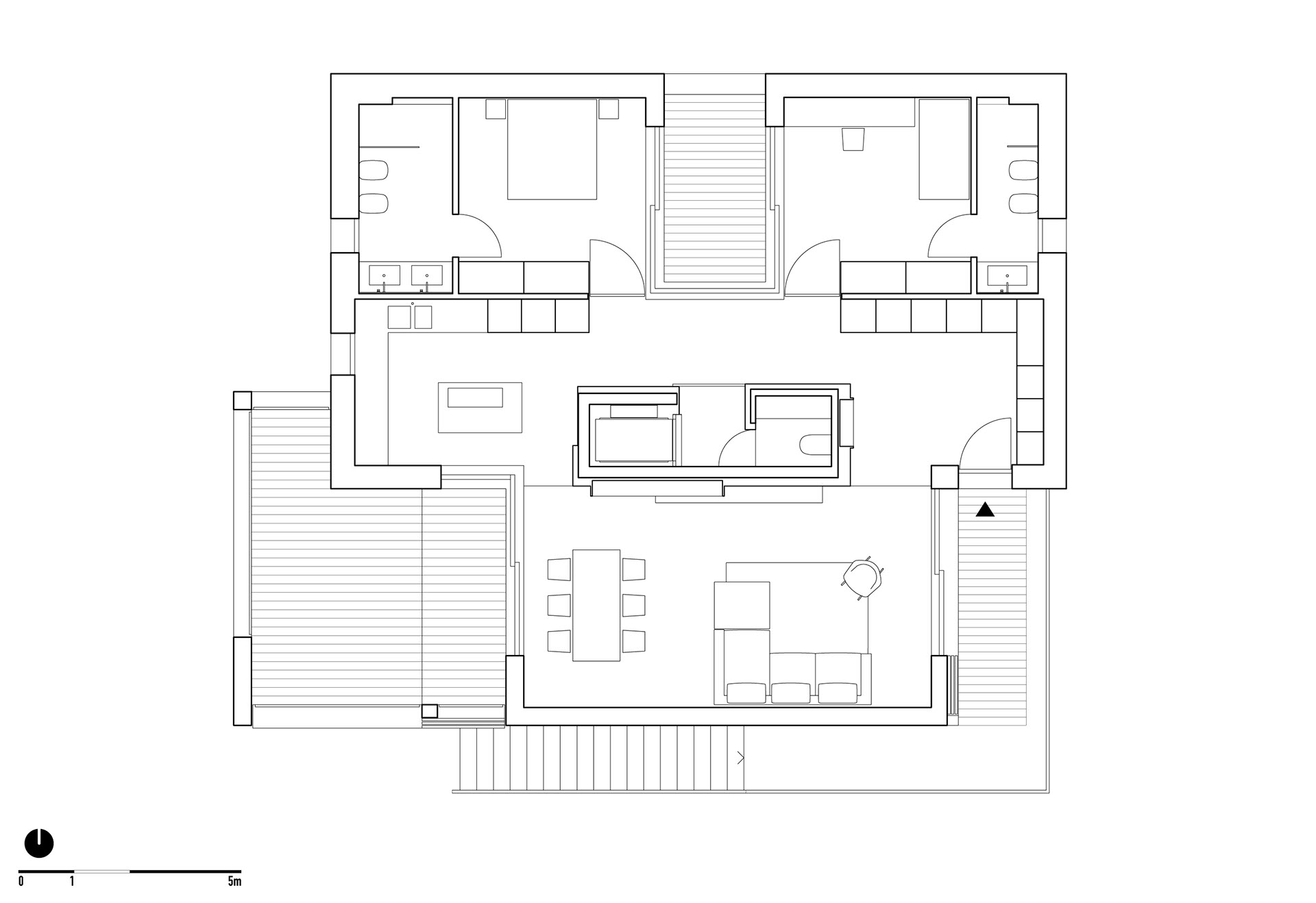
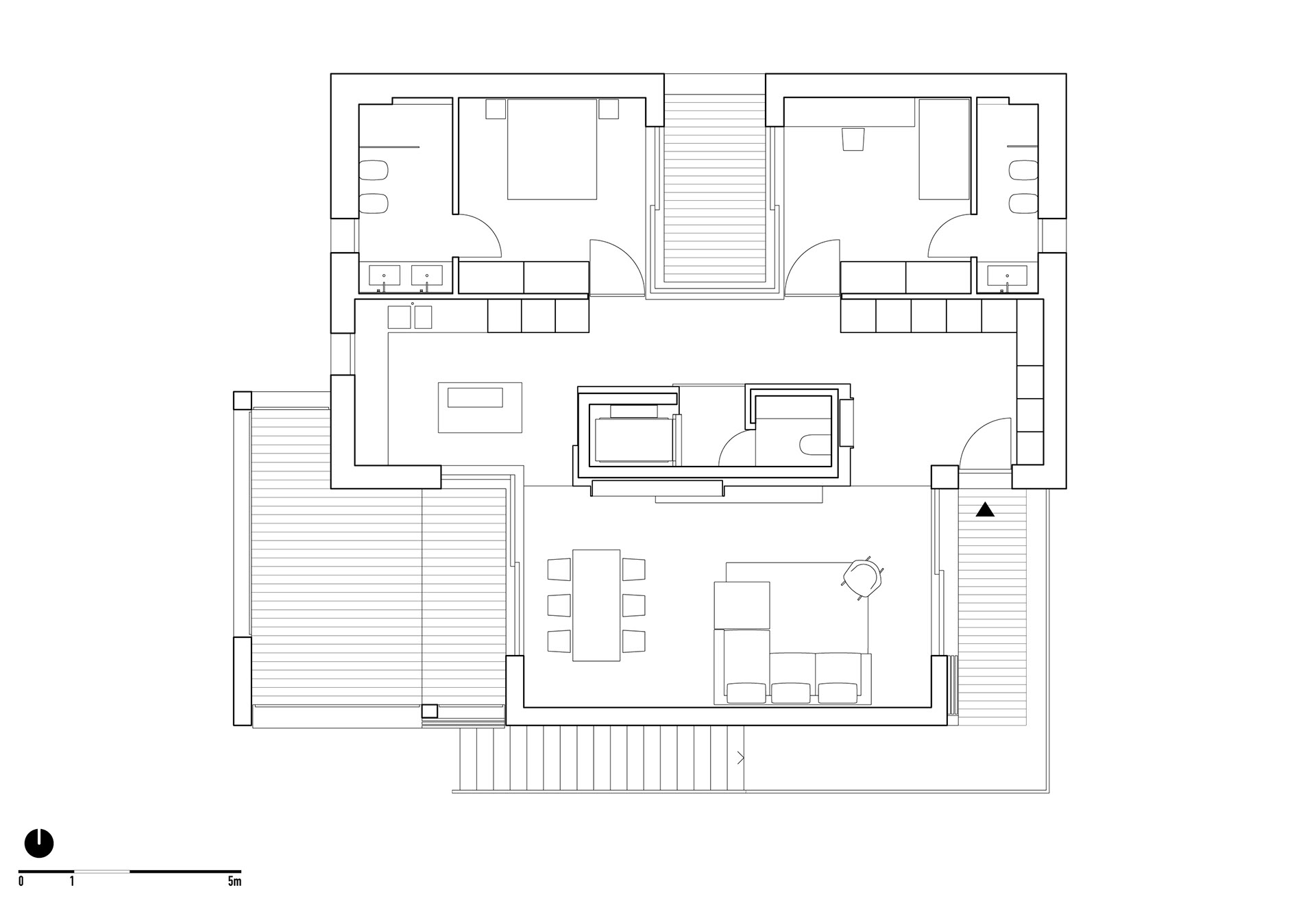
La casa unifamiliare costruita nel 2007 dai genitori è stata sopralzata creando un nuovo appartamento per la figlia. Il concetto alla base del progetto parte dalla volontà di creare spazi domestici in continuità tra loro che pur essendo aperti verso il paesaggio consentano una certa intimità e riservatezza. In questo senso la casa è un grande spazio suddiviso in stanze in continuità con piccoli patii. Nuove elemento che organizza la gerarchia della casa è rappresentato da un blocco centrale rivestito in doghe di noce che articola e suddivide le funzioni interne  e che a sua volta contiene il vano ascensore e i servizi.
The parents home built in 2007 has been expanded to form a new apartment for the daughter. The concept behind the project starts from the desire to create living spaces that, although open to the landscape, allowing some privacy and confidentiality. In this sense, the house is a large space divided into rooms in continuity with small patios. New element that organizes the hierarchy of the house is represented by a central block lined with walnut slats that articulates and divides the internal functions and which contains the elevator shaft and services.
 
      
      
      
      
      
      
      
      
      
      
      
      
      
      
      
      
      
      
      
      
      
      
      
      
      
      
      
      
      
      
      
      
     