
CENTRO PARROCCHAILE
AMPLIAMENTO ORATORIO
Carvico, BG
dimensione: 2000 mq
importo: 2,5 milioni di euro
funzione: oratorio
progetto: 2009
costruzione: 2011
cliente: Parrocchia San Martino Vescovo
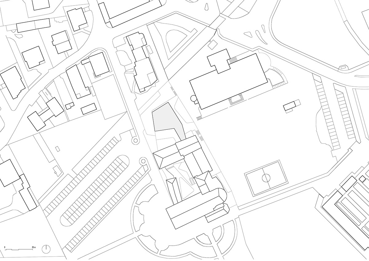
Il complesso parrocchiale esistente si articola attorno ad una corte chiusa dalla quale emerge il volume monumentale della chiesa. Il nuovo corpo di fabbrica è stato pensato come un’entità autonoma e formalmente indipendente, disposta a nord del complesso, al centro di un giardino di forma irregolare. Collegato all’esistente solo attraverso un sistema di percorsi che diventano spazio, l’edificio si sviluppa su tre livelli: il piano interrato con i servizi, il piano terreno con l’atrio d’ingresso, la segreteria e il bar, il piano primo con tre nuove aule. Rispetto alla forma regolare degli edifici esistenti il nuovo corpo assume un carattere più scultoreo in cui il disegno della pianta si fonde con gli alzati

PARISH CENTRE
The parish centre is located in the middle of Carvico, a village near the city of Bergamo in Italy.
The actual parish centre is made by some small buildings from different ages where the monumental volume of the parish church stands out in the old central courtyard. This building is connected with the old centre by a sistem of ways, they are not only paths but they become a kind of space. The addiction is composed by three levels: in the basement there are the services, while the entrance, the secretary and the cafè are in the ground floor, in the first floor there are three new classrooms and the connection with the others classrooms of the old parish centre. The new building has a sculptural form, where the plan merges the perspective drawing. Only the reinforced concrete can give this kind of sensation, special attention had to be given to the wall formwork that are specifically design to reach this target.
The actual parish centre is made by some small buildings from different ages where the monumental volume of the parish church stands out in the old central courtyard. This building is connected with the old centre by a sistem of ways, they are not only paths but they become a kind of space. The addiction is composed by three levels: in the basement there are the services, while the entrance, the secretary and the cafè are in the ground floor, in the first floor there are three new classrooms and the connection with the others classrooms of the old parish centre. The new building has a sculptural form, where the plan merges the perspective drawing. Only the reinforced concrete can give this kind of sensation, special attention had to be given to the wall formwork that are specifically design to reach this target.





















